9124 Gravelly Lake Drive SWLakewood, WA98499
Listing courtesy of Mark Bergman of Windermere Prof Partners
Due to the health concerns created by Coronavirus we are offering personal 1-1 online video walkthough tours where possible.




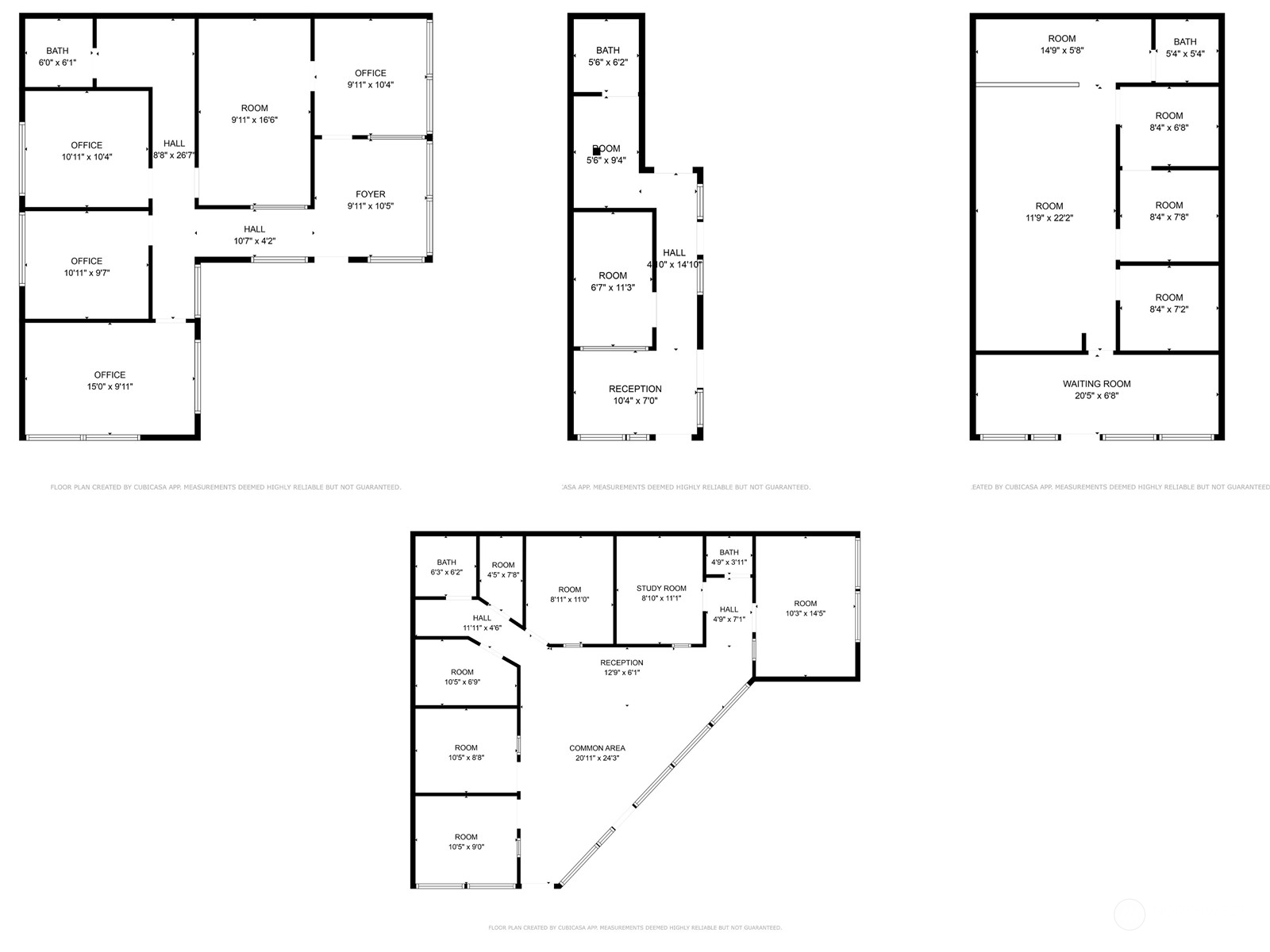
Prime Owner-User Opportunity! Stunning 3,885± SF professional office building, 100% vacant and ready for your vision! Perfectly positioned at Bridgeport Way and Gravelly Lake Dr, this gem boasts unmatched visibility with over 20,000 vehicles passing daily. Enjoy monument signage and dual access on both major roadways, ensuring your business stands out. Featuring recently upgraded HVAC, tasteful finishes, and four versatile office suites ideal for single or multi-tenant use. Ample parking secured via a cross-parking easement. Seize this rare chance to own a high-traffic, move-in-ready professional space with incredible potential!
| 5 days ago | Listing updated with changes from the MLS® | |
| 4 months ago | Price changed to $899,000 | |
| 2 years ago | Status changed to Active | |
| 2 years ago | Listing first seen on site |
Listing courtesy of Mark Bergman of Windermere Prof Partners

Listing information is provided by Participants of the Northwest MLS. IDX information is provided exclusively for personal, non-commercial use, and may not be used for any purpose other than to identify prospective properties consumers may be interested in purchasing. Information is deemed reliable but not guaranteed. Copyright 2026, Northwest MLS.
All data is obtained from various sources and may not have been verified by the broker or MLS Grid. Supplied open house information is subject to change without notice. All information should be independently reviewed and verified for accuracy. Properties may or may not be listed by the office/agent presenting the information.
Last checked: 2026-03-07 10:57 AM PST
Did you know? You can invite friends and family to your search. They can join your search, rate and discuss listings with you.