Save
Ask
Tour
Hide
Share
$355,000
183 Days On Site
542 HANN StreetBuckley, WA98321
For Sale|Land|Active
Cumulative Days On Market:
183
Subdivision:
Buckley
County:
Pierce
Courtesy of NWMLS
Listing courtesy of Josh Hosford of Mt. Rainier Realty
Listing courtesy of Josh Hosford of Mt. Rainier Realty
Due to the health concerns created by Coronavirus we are offering personal 1-1 online video walkthough tours where possible.
Call Now: 253-268-1714
Is this the listing for you? We can help make it yours.
253-268-1714



Save
Ask
Tour
Hide
Share
Photos
Map
Nearby Listings
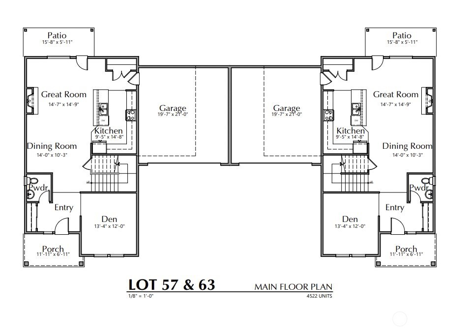
Attention all builders and investors. Very large and flat, ready to build corner duplex lot in the new DR Horton Blueberry Farm plat with design review completed for 2,222 sq ft, 4bd, 2ba, 2 story duplex with 2 car garage. All utilities on lot. Currently state law allows for up to 3 units so buyer could redesign. Buyer to verify. Would be great option to build and live in one unit and rent the other. Milbrandt architects elevations for design review approved by city included in sale price.
Save
Ask
Tour
Hide
Share
Listing Snapshot
Price
$355,000
Days On Site
183 Days
Bedrooms
N/A
Inside Area (SqFt)
0 sqft
Total Baths
N/A
Full Baths
N/A
Partial Baths
N/A
Lot Size
0.3036 Acres
Year Built
N/A
MLS® Number
2428431
Status
Active
Property Tax
N/A
HOA/Condo/Coop Fees
$41.67 monthly
Sq Ft Source
N/A
Friends & Family
React
Comment
Invite
Recent Activity
| 5 months ago | Listing updated with changes from the MLS® | |
| 6 months ago | Status changed to Active | |
| 6 months ago | Listing first seen on site |
General Features
Acres
0.3036
Additional Property Use
Residential
Utilities
Electricity ConnectedNatural Gas Available
Zoning
R6/8 - Cluster Housing Co
Save
Ask
Tour
Hide
Share
Exterior Features
Lot Features
LevelCorner LotCul-De-SacPaved
Community Features
Association Dues
500
HOA Fee Frequency
Annually
MLS Area
111 - Buckley/South Prairie
Roads
Paved
School District
White River
Schools
School District
White River
Elementary School
Buyer To Verify
Middle School
Unknown
High School
White River High
Courtesy of NWMLS
Listing courtesy of Josh Hosford of Mt. Rainier Realty

Listing information is provided by Participants of the Northwest MLS. IDX information is provided exclusively for personal, non-commercial use, and may not be used for any purpose other than to identify prospective properties consumers may be interested in purchasing. Information is deemed reliable but not guaranteed. Copyright 2026, Northwest MLS.
All data is obtained from various sources and may not have been verified by the broker or MLS Grid. Supplied open house information is subject to change without notice. All information should be independently reviewed and verified for accuracy. Properties may or may not be listed by the office/agent presenting the information.
Last checked: 2026-03-04 12:11 AM PST
Listing courtesy of Josh Hosford of Mt. Rainier Realty

Listing information is provided by Participants of the Northwest MLS. IDX information is provided exclusively for personal, non-commercial use, and may not be used for any purpose other than to identify prospective properties consumers may be interested in purchasing. Information is deemed reliable but not guaranteed. Copyright 2026, Northwest MLS.
All data is obtained from various sources and may not have been verified by the broker or MLS Grid. Supplied open house information is subject to change without notice. All information should be independently reviewed and verified for accuracy. Properties may or may not be listed by the office/agent presenting the information.
Last checked: 2026-03-04 12:11 AM PST
Neighborhood & Commute
Source: Walkscore
Save
Ask
Tour
Hide
Share
Did you know? You can invite friends and family to your search. They can join your search, rate and discuss listings with you.